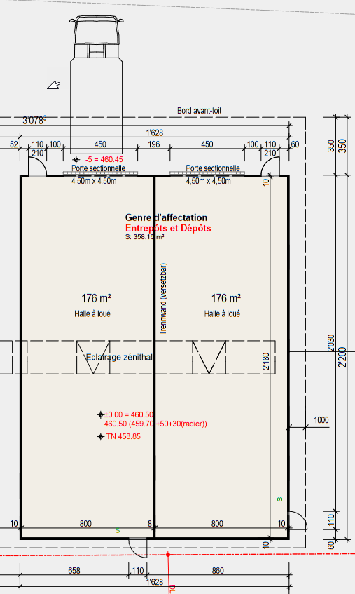
Wir vermieten zwei Hallen mit je 175m2 Fläche oder eine Halle mit 350m2 Fläche. Die Hallen sind ca. 20.30 Meter lang, 8.60 Meter breit und 7 Meter hoch. Die Hallen verfügen über ein Rolltor mit den Massen 4.50 Meter x 4.50 Meter und über je 2 Notausgänge.
Auf Wunsch besteht die Möglichkeit, die Hallen mit einer Etage für Lagerungen oder Büros und Aufenthaltsräume aus zu statten. Sanitäranlagen werden auf Ihren individuellen Wunsch eingerichtet.
Zusätzlich besteht die Möglichkeit zur Anmietung eines weiteren Büroraums mit 17m2 im Hauptgebäude der BM&MB-Logistik GmbH.

